专家住宅区

宝明工业区的专业住宅区是与工业园区内的工厂分开规划和建造的,其中包括6座用于专业住宅和相连内部道路的高端专业住宅。在工业园区的道路上。

每间专家院的面积包括:

-CG01,CG06公寓:362m2,房屋面积145m2,使用面积283m2,花园面积217m2。
-CG02,CG05公寓:442平方米,房屋面积145平方米,使用面积283平方米,花园面积297平方米。
-公寓CG03,CG04:454平方米,房屋面积145平方米,使用面积283平方米,花园面积309平方米。

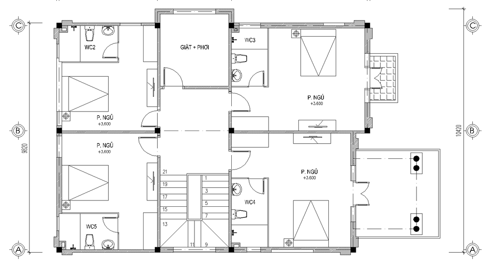
专家之家的典型功能场所包括:

-客厅:01间。
-餐厅+厨房:01个房间。
-卧室:04间客房。
-厕所+浴室:05间客房。
-洗衣房+晾衣服:01间。
-楼层数:02层。
服务区:包括24/7全天候安全服务,厨房,服务室,车库,洗衣区和变电站,备用发电机。
专业住宅的景观,花园:根据整个房屋的总体景观同步建造

    Contacts

    Full name
    Phone
    Email
    Company
    Business services
    Country of origin
    Utilization purpose
    Utilization purpose other
    Interested in product
    Reservation register

    查看更多

    工业用地

    工业用地

    宝明工业园位于南北国家铁路和10号国道-是一条主要的经济干道,有4条车道,沿着北海岸。部通过6个省市:广宁市,海防市,泰平市,南定市,宁平市和清化市,并与QL5,QL37,QL39,QL21,河内公路等重要交通路线相连-海防和省道,连接当地主要的经济和政治中心,工业园区

    厂房出租

    厂房出租

    根据投资者的要求,建造面积至少为500平方米的现成的出租工厂,以快速稳定生产和业务并最大程度地降低初始投资成本。

    工人公寓区

    工人公寓区

    该公寓大楼具有400套公寓及其他辅助设施,对环境友好,以确保为工业园区的工人和官员提供稳定,舒适和安全的住所

    住宅房地产

    住宅房地产

    便利的地理位置-完善的基础设施-打包服务是我们在住宅区建设中满足客户不断增长的需求的首要任务在选择客户的住宿时要了解最高标准,Bao Minh的公寓和房屋在技术基础架构

    实用程序

    实用程序

    足球场,高尔夫球训练场,游泳池,餐厅区...为工业园区的官员和工人提供运动和娱乐需求